El Puerto Fresco
La Latina, Madrid
+ PFC2012
#mercado #movilidadverde #innovación
+ PFC2012
#mercado #movilidadverde #innovación
El Puerto Fresco de La Latina.
+año: 2012
+fase: Proyecto Fin de Carrera, Fernando Arocha Ferreiro.
︎ Seleccionado entre los 30 mejores PFC en España 2011/12 XII Bienal Española Arquitectura y Urbanismo
︎Mención Especial del Premio Extraordinario de PFC 2011/12 UEM
En 2011 Madrid sobrepasó los límites de contaminación permitidos por la Unión Europea en todas sus estaciones de medición urbanas a excepción de la situada en el Parque del Retiro.
La contaminación, medida en partículas finas, óxidos de nitrógeno u óxidos de carbono -entre otras-, está relacionada directamente con la densidad de tráfico de las zonas centrales. La Latina, con gran actividad comercial, tampoco está a salvo de la contaminación ambiental, a la que se suman otros problemas derivados de la congestión.
El barrio de La Latina sufre desde hace años los problemas del tráfico; contaminación, ruido excesivo, retraso en desplazamientos. En definitiva, un descenso en la calidad de vida, que en Madrid se cuantifica hasta con 12 meses de reducción de eseranza de vida (1).
Según un estudio de la Agencia de Ecología Urbana de Barcelona, el 60,1% del espacio libre en las ciudades españolas se dedica al uso exclusivo del automovil (2). En la fotografía se hace evidente el problema en el entorno del Mercado de la Cebada, por donde cada mañana circulan una media de 700 vehículos de reparto (3), que estacionan de manera ilegal en un 86% de las ocasiones (4).
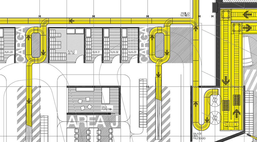
El presente proyecto analiza y pone sobre la mesa el problema del transporte de mercancías en el centro de las ciudades, y propone una alternativa al mod elo actual.
(1) Low Emission Zones. www.lowemissionszone.eu (EU CAFE Program)
(2) Salvador Rueda, Agencia de Ecología Urbana de Barcelona
(3) Elaboración propia. Ver lámina 04 del presente proyecto.
(4) Proyecto Madrid Centro PMC 2010, Ezquiaga, Herreros, Perez-Arroyo.

